BTALU

Concealed Beam Hanger

The BTALU concealed hanger is one solution to connecting timber members together without seeing the connector.
It is designed to be fixed to the header timber and then fully inserted into a slot in the in-coming beam, and held in place with dowels. Holes are drilled through the timber and fin of the BTALU, allowing accurate alignment. This method provides an aesthectically pleasing connection for feature beams.

Note: Fasteners & dowels supplied; dowel length must be specified upon ordering

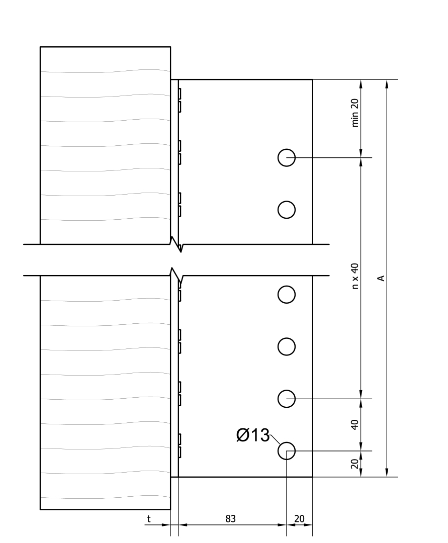
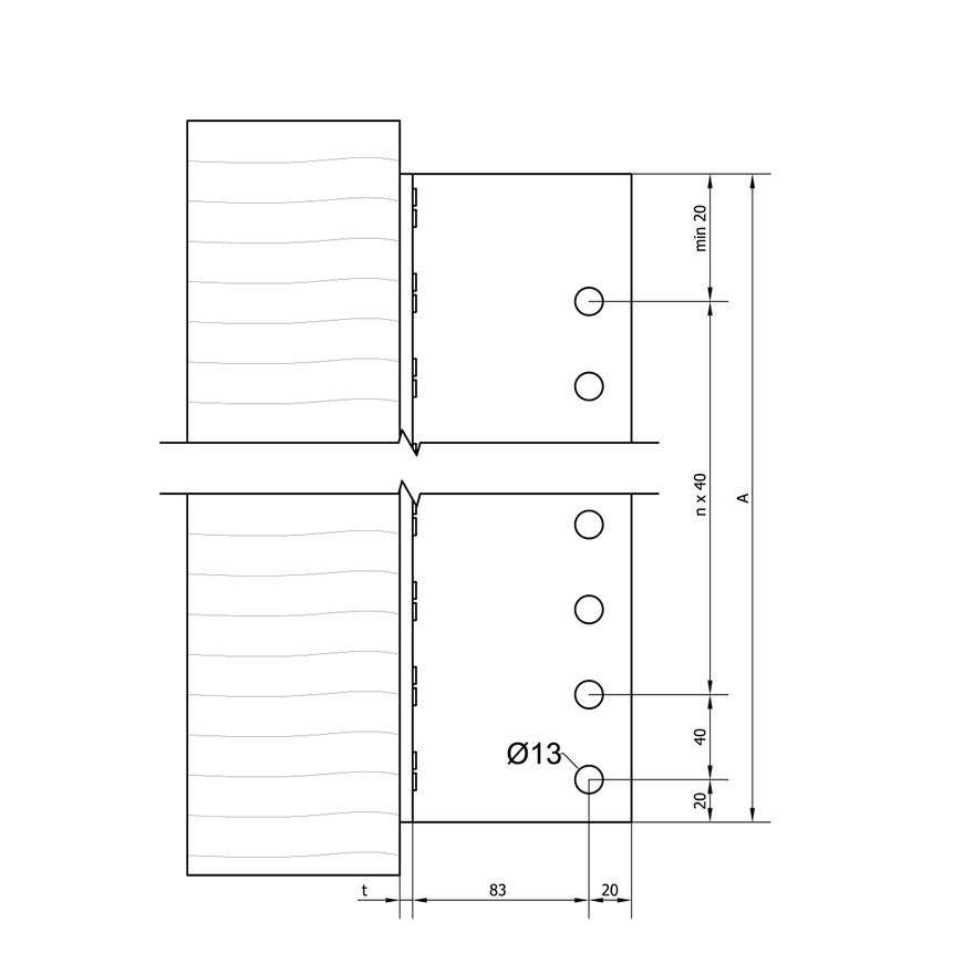
Holes for the joist have to be site drilled in accordance to positions shown in diagram below.

CE Marking
ETA
Service class 3
Fire resistance R 30
Aluminium
Outdoor

Product Details

Features

Material

Aluminium

Benefits

  • Accurate alignment of dowels
  • Aesthetically pleasing

Application

For Connecting

Glulam timbers

For Use With

Carried and carrying Glulam member

Technical Data

Dimensions

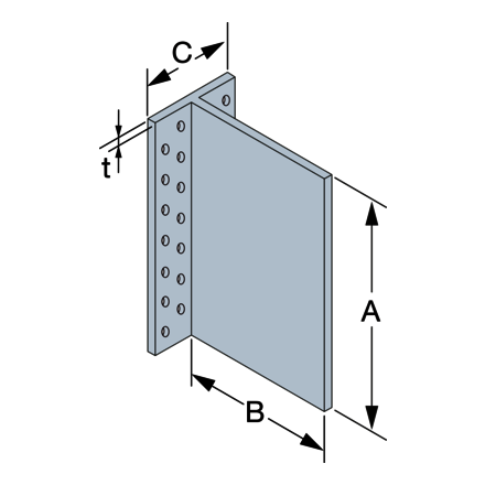
Product Dimensions

References Min Joist Height [mm] Product Dimensions [mm] Header holes Box Quantity Weight [kg]
A B C t Ø5
BTALU901428610962616250.23
BTALU12017211610962620250.3
BTALU16021215610962628250.41
BTALU20025219610962638150.51
BTALU24029223610962644150.61

The holes for the joist has to be drill acc. to the hole pattern of the ETA.

The size A can be up to 4mm less for cutting from the raw length, the cut shall be between the nail holes.

Performance Values

References Product Capacities [kN]
Number of Fasteners R1,k  = R2.k
Header Joist Dowels length [mm]
Qty Type Qty Type 60 80 100 120 140 160
BTALU9016CNA4.0x504STD810.811.812.913.713.713.7
BTALU12020CNA4.0x503STD1217.318.219.420.722.323.9
BTALU16028CNA4.0x504STD122829.531.233.335.738.2
BTALU20038CNA4.0x505STD1239.841.944.347.250.453.9
BTALU24044CNA4.0x506STD1252.254.957.961.765.970.3

The joist shall have as minimum a width = length of steel dowel.

For beams with a slope β the capacities shall be multiply with the factor.

β15°30°45°
factor1.00.950.900.85

It´s only necessary for connection with less than 7 steel dowel in the joist.

 

Installation

Installation

Fixing

CNA4,0xL

Certification

Declaration of Performance (DoP)

European Technical Assessment (ETA)

CAD and BIM Library

ZIP Packages

Buy from Distributor

No items available.

Contact

Simpson Strong-Tie U.K.

Simpson Strong-Tie

Cardinal Point, Winchester Road
Tamworth
Staffordshire
B78 3HG
United Kingdom